Location
Agent Comments
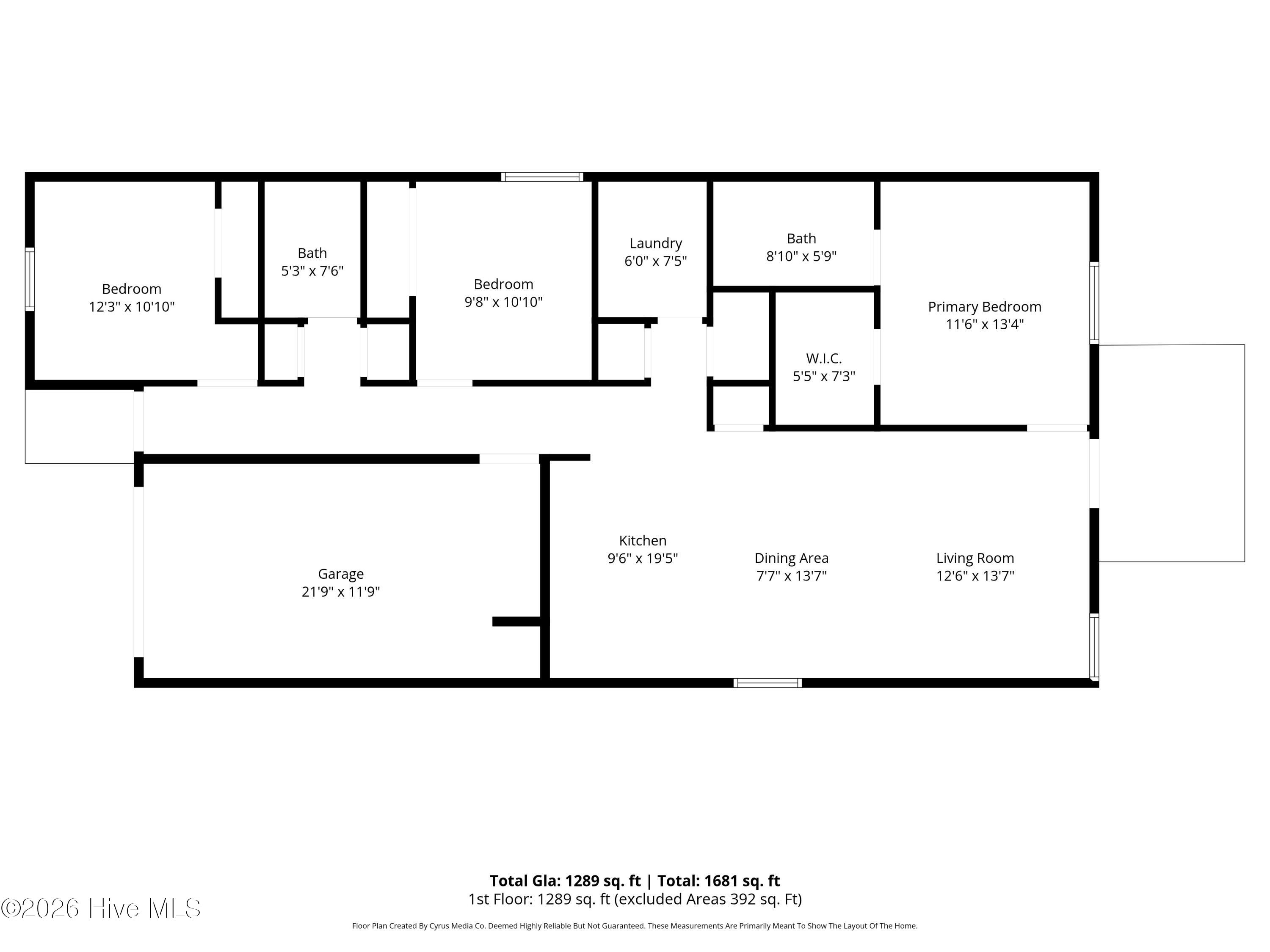
Seller is offering $5000 use as you choose to the buyer!!! Better than new and move-in ready, this charming one level home offers the upgrades you want--without the wait. From the fully finished garage with epoxy floors to the granite countertops, handle pulls on all cabinetry, custom window treatments, and thoughtfully designed landscaping, every detail has already been done for you. Set on a premium .20, private lot with peaceful wooded views, this home offers the perfect balance of comfort and tranquility. A completed survey makes adding a fence simple, and a transferable termite bond adds extra peace of mind. Just 7 minutes from Holden Beach, you'll love having easy access to coastal living--morning walks collecting shells, afternoons in the sun, and evenings filled with ocean breezes and birdsong.
Located in a quiet community with a pool projected to be completed this year, this is your opportunity to enjoy the best of beach living at an exceptional value. This one is truly special--come see it before it's gone. For information about our preferred lender and the incentives you may qualify for, please ask your agent to review the agent comments for additional details.
Amenities
- Built-In Microwave
- Refrigerator
- Disposal
- Electric Range
Interior Features
- Cool System: Central Air, Heat Pump
- Heat System: Heat Pump, Electric
- Floors: 0
- Rooms: Master Bedroom, Bedroom 2, Bedroom 3, Living Room, Dining Area, Laundry
- Interior: Master Downstairs, Walk-in Closet(s), Entrance Foyer, Solid Surface, Kitchen Island, Ceiling Fan(s), Pantry, Walk-in Shower, Blinds/Shades, Walk-In Closet(s)
Exterior Features
- Parking: Concrete, Garage Door Opener, Garage6
- Siding: Vinyl Siding
- Roof: Architectural Shingle
Additional Features
- County: Brunswick
- Property Type: Single Family Residence
- Tax Number: 216lh022
- Water/Sewer: Brunswick County Public Utilities
- Year Built: 2024
Recently Viewed
