Location
Agent Comments
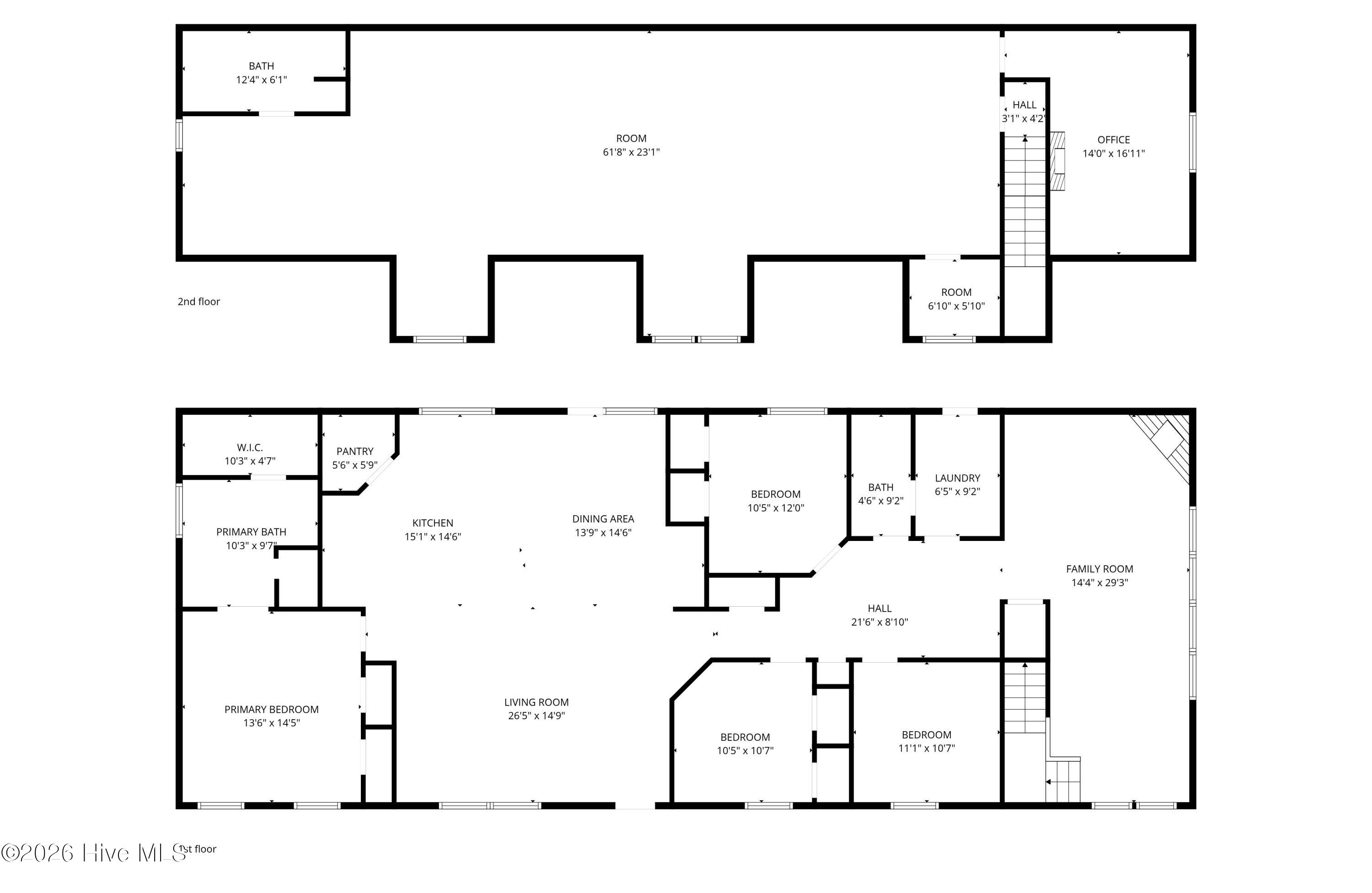
Nestled on 3.99 acres in Hubert, this spacious two-story home offers the perfect blend of comfort, privacy, and room to grow. With 4 bedrooms and 3 full bathrooms, there is plenty of space for everyday living, guests, or a flexible home office setup.
Inside, you'll find new flooring throughout the kitchen, living room, hallway, guest bathroom, and laundry room, creating a fresh and updated feel in the main living areas. The remodeled kitchen is a standout feature, equipped with KitchenAid appliances and designed with both functionality and style in mind.
In addition to the main living room, the home also features a separate den, providing an additional cozy space for relaxing, a playroom, or a media area. Upstairs you'll find a huge bonus room, offering endless possibilities for a game room, home office, hobby space, or guest retreat.
The primary bathroom has been updated with a beautifully remodeled shower, adding a modern touch. Step outside to enjoy the large back deck, perfect for entertaining, grilling, or simply enjoying the peaceful surroundings.
The nearly 4 acres of land provide incredible versatility, with an area already cleared for livestock or hobby farming, giving you space for animals, gardening, duck hunting or outdoor projects.
If you're looking for a property that offers space, updates, and room to enjoy the outdoors, this Hubert property is ready to welcome you home.
Amenities
- Electric Oven
- Dishwasher
Interior Features
- Cool System: Central Air, Ceiling Fan(s)2, Heat Pump
- Heat System: Heat Pump, Electric
- Floors: 0
- Rooms: Living Room, Dining Area, Dining Room, Laundry, Master Bedroom, Bedroom 2, Bedroom 3, Bedroom 4, Bonus Room, Den
- Interior: Kitchen Island, Ceiling Fan(s), Blinds/Shades
Exterior Features
- Parking: No Garage
- Siding: Vinyl Siding
- Roof: Shingle
- Exterior: Outdoor Shower, Storm Doors
Additional Features
- County: Onslow
- Property Type: Manufactured Home
- Tax Number: 2147483647
- Year Built: 2007
Recently Viewed
