Location
Agent Comments
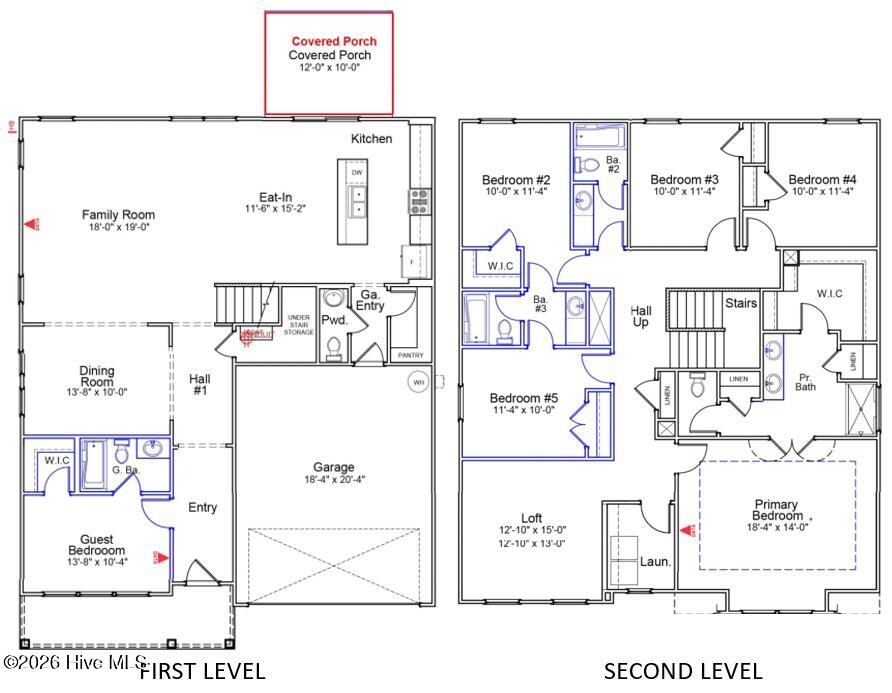
The Turner is a two-story open plan home with six bedrooms and four and a half baths. There is a guest suite, equipped with walk-in closet and a full bath, off of the entry. The great room has access to the formal dining room, kitchen and eat-in area. The kitchen features a large island and walk-in pantry off of the garage entrance. There is also ample under stair storage. The upstairs primary bedroom features a large walk-in closet, dual linen closets and a five-foot walk-in shower. Two of the secondary bedrooms share a full bathroom. The other two secondary bedrooms share a jack and jill bathroom. Loft and laundry room are also conveniently located upstairs.
Amenities
- Electric Oven
- Electric Cooktop
- Built-In Microwave
- Disposal
- Dishwasher
- ENERGY STAR Qualified Appliances
Interior Features
- Cool System: Central Air
- Heat System: Electric, Heat Pump
- Floors: 0
- Rooms: Living Room, Dining Room, Dining Area, Master Bedroom, Bedroom 2, Bedroom 3, Bedroom 4, Bedroom 5, Bedroom 6, Loft
- Interior: Walk-in Closet(s), Tray Ceiling(s), High Ceilings, Entrance Foyer, Solid Surface, Kitchen Island, Ceiling Fan(s), Pantry, Walk-in Shower, Walk-In Closet(s)
Exterior Features
- Parking: Garage Faces Front, Attached, Concrete
- Siding: Vinyl Siding
- Roof: Architectural Shingle
- Exterior: Cluster Mailboxes
Additional Features
- County: Onslow
- Property Type: Single Family Residence
- Tax Number: 2147483647
- Water/Sewer: Onslow Water Authority
- Year Built: 2026
Recently Viewed
