Location
Agent Comments
Experience elevated coastal living in this exceptional new construction home sitting on 1.66 acres of land. Offering 3 bedrooms and a bonus room with thoughtfully curated design and premium finishes. Perfectly positioned with stunning White Oak River views from the front and tranquil creek views from the rear, this residence delivers both serenity and sophistication.
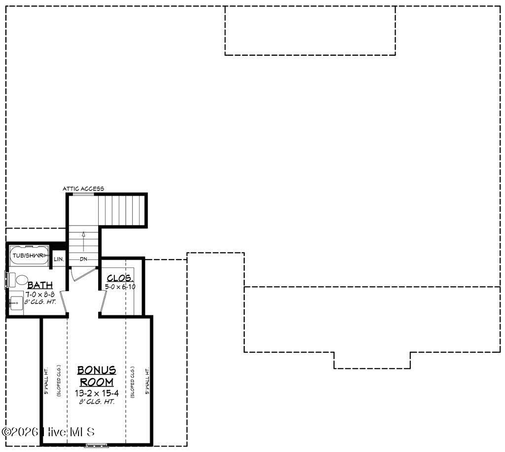
Designed with a desirable split floor plan with 3 bedrooms downstairs and an expansive bonus room suite upstairs. The bonus space is fully spray foam insulated and equipped with its own dedicated thermostat zone, and full bathroom, ideal for a private guest retreat, executive office, or media lounge.
At the heart of the home, the chef's kitchen makes a statement with a dramatic waterfall island complete with a pop-up outlet and USB-C integration, pot filler over the range, and an elegant butler's pantry designed for seamless entertaining and elevated storage.
No detail was overlooked in blending luxury with modern functionality:
• 200-amp transfer switch installed and generator-ready
• 50-amp electric vehicle charging station in the garage
• Pre-rated for future utility service (hot tub, detached structure, etc.)
• Upgraded 8-foot insulated garage door
• Climate controled garage for enhanced efficiency and comfort
Just steps from the community boat ramp and private dock, this home offers effortless access to life on the water. Ideally located near premier golf courses, fine coastal dining, grocery conveniences, the NC Aquarium, and pristine Crystal Coast beaches, and less than 5 miles to the Emerald Isle Bridge.
This is more than a home. It's a statement in coastal elegance, modern innovation, and waterfront lifestyle.
Amenities
- Built-In Microwave
- Dishwasher
- Electric Range
Interior Features
- Cool System: Central Air, Zoned
- Heat System: Electric, Heat Pump
- Floors: 0
- Rooms: Master Bedroom, Bedroom 2, Bedroom 3, Bedroom 4, Laundry, Great Room, Dining Area
- Interior: Master Downstairs, Walk-in Closet(s), Mud Room, Kitchen Island, Ceiling Fan(s), Pantry, Reverse Floor Plan, Walk-in Shower, Walk-In Closet(s)
Exterior Features
- Parking: Concrete
- Siding: Vinyl Siding
- Roof: Shingle
Additional Features
- County: Carteret
- Property Type: Single Family Residence
- Tax Number: 2147483647
- Year Built: 2026
Recently Viewed
