Location
Agent Comments
Step into Southport's storied past at the Asa Dosher House—an iconic 1895 Victorian gracefully positioned in the heart of the historic district at 210 W. West Street. Proudly listed on the National Register of Historic Places, this distinguished home pairs preserved architectural beauty with generations of coastal Carolina heritage.
Occupying nearly 0.4 acres, the property boasts one of the largest yards in downtown Southport. The grounds trace their origins to the 1700s and were once owned by the granddaughter of Colonel William Rhett, celebrated for capturing the gentleman pirate Stede Bonnet during the Battle of the Sandbars.
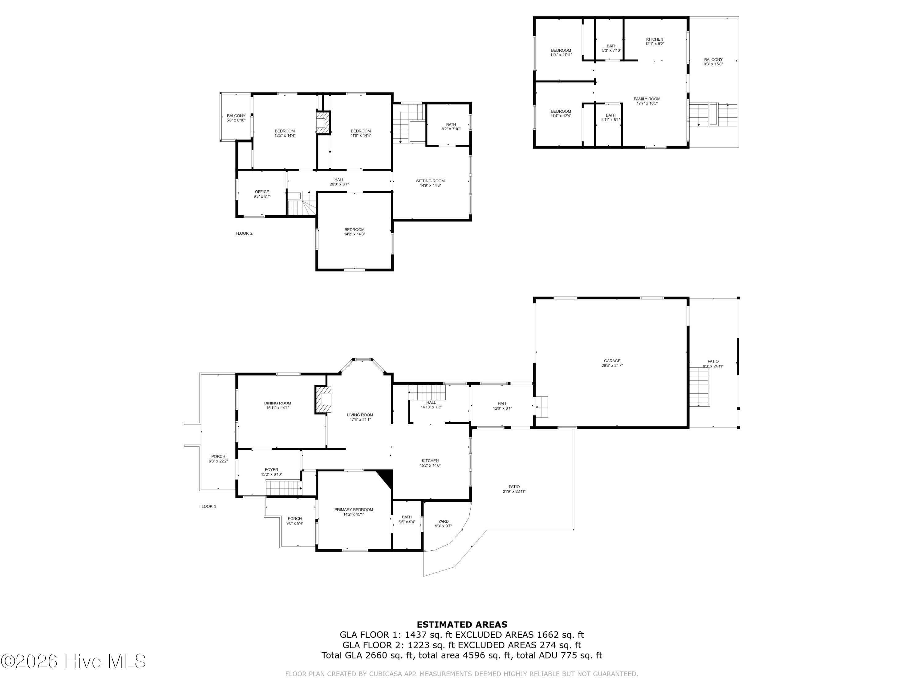
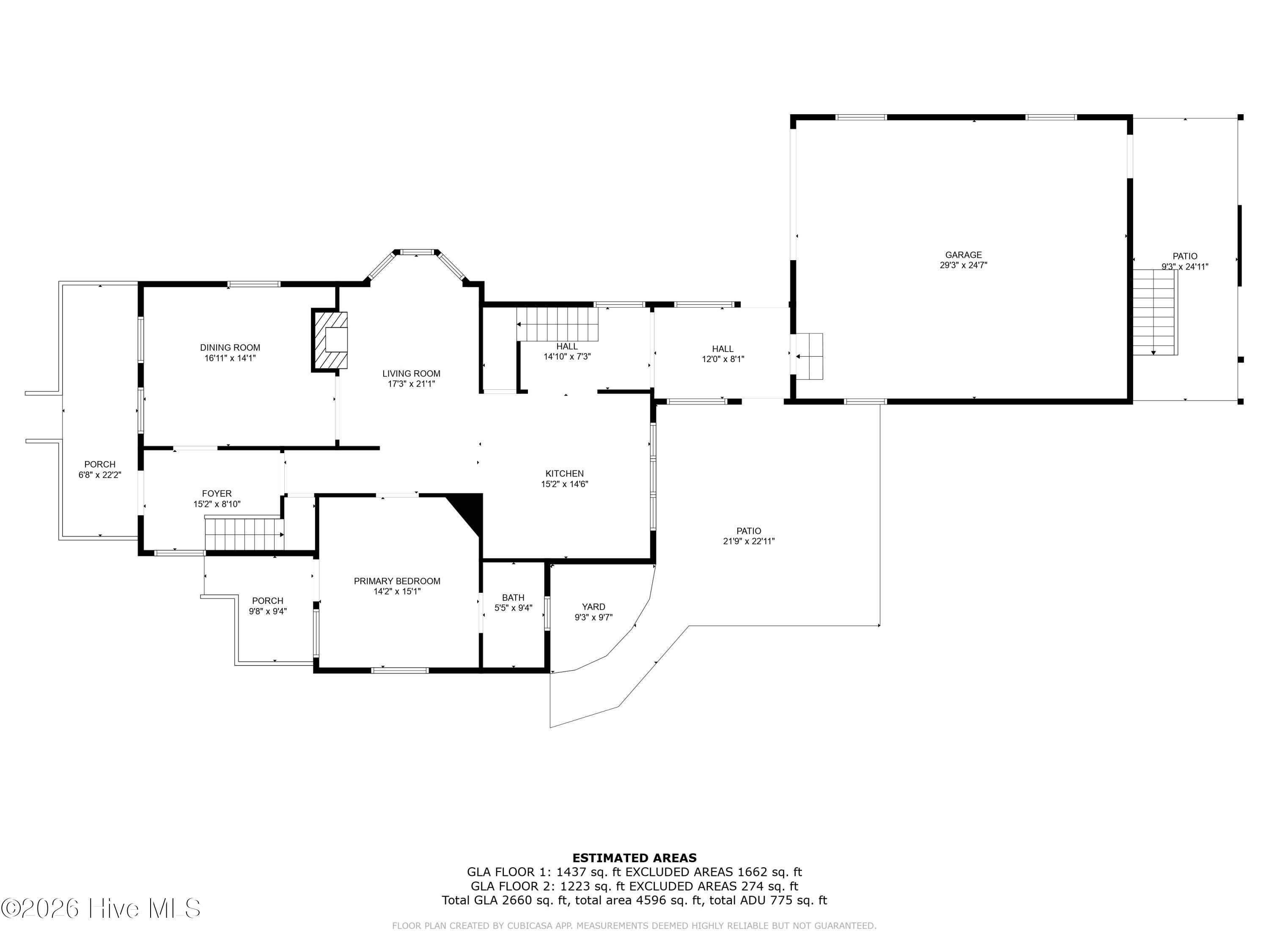
Thought to have been built by W.T. Ottoway—the craftsman responsible for the historic Robert Ruark Inn—the Asa Dosher House reflects the enduring artistry and refined character of Southport's Victorian era. The four-bedroom, two-bath main residence preserves its authentic appeal with soaring ceilings, detailed millwork, and the signature Southport bow window trim that defines its façade.
A substantial detached garage is complemented by a two-bedroom, two-bath guest apartment above, complete with a private entrance and exterior lift. This flexible space is ideal for extended family, visiting guests, or potential rental income. In total, the property offers approximately 3,500 square feet of finished living space.
Rich in provenance and ideally located just blocks from the waterfront, boutiques, and dining, this exceptional offering presents a rare chance to own a documented and designated piece of Southport's remarkable history.
Amenities
- Trash Compactor
- Electric Oven
- Electric Cooktop
- Washer
- Refrigerator
- Dryer
- Disposal
- Dishwasher
- Tankless Water Heater
Interior Features
- Cool System: Central Air, Zoned
- Heat System: Electric, Heat Pump, Zoned
- Floors: 0
- Rooms: Bedroom 1, Bedroom 2, Bedroom 3, Bedroom 4, Living Room, Dining Room, Dining Area, Bonus Room, Laundry, Fnshd Room over Garage
- Interior: Master Downstairs, Walk-in Closet(s), High Ceilings, Entrance Foyer, Mud Room, Solid Surface, Apt/Suite, Ceiling Fan(s), Pantry, Walk-in Shower, Blinds/Shades, Gas Log, Walk-In Closet(s)
Exterior Features
- Parking: Additional Parking, Lighted, Off Street, On Site, Paved
- Siding: Vinyl Siding, Wood Siding
- Roof: Architectural Shingle
- Exterior: None
Additional Features
- County: Brunswick
- Property Type: Single Family Residence
- Tax Number: 237ld024
- Water/Sewer: Brunswick County Public Utilities
- Year Built: 1895
Recently Viewed
