Location
Agent Comments
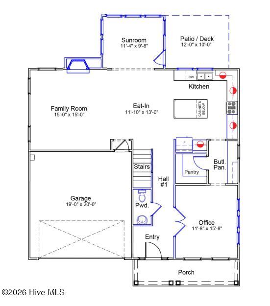
Welcome to 202 Planters Walk, located in the sought-after gated waterfront community of East Wynd in Hampstead, NC. This home features one of our newest floor plans, the Keowee C, and stands out with a beautiful exterior complete with double front porches, perfect for enjoying coastal breezes and neighborhood views. Inside, you'll find 4 bedrooms, 2.5 bathrooms, and 2,689 square feet of open, well-designed space. The main level offers a bright and inviting layout with upgraded features that add both style and function, including a cozy sunroom, private home office, and a butler's pantry for extra storage and serving space. Whether hosting friends or unwinding after a long day, this floor plan is made for the way you live. Upstairs, all four bedrooms are generously sized, but the highlight is the spacious primary suite, including a private sitting room. The primary bathroom features a large walk-in shower, dual sinks, private water closet, and plenty of linen storage. The oversized walk-in closet connects directly to the laundry room, adding an extra touch of everyday convenience. This home sits on a 0.28-acre exterior homesite and comes with access to great community amenities, including a day dock with kayak and paddleboard launch, sidewalks, streetlights, and a central mailbox center. East Wynd is also a natural gas community with public water and sewer, plus AT&T Fiber available. If you've been looking for a home that offers comfort, quality, and a true coastal lifestyle, 202 Planters Walk is one you won't want to miss. Schedule your tour today! **Home Under Construction - Estimated Completion Late Spring 2026**
Amenities
- Gas Cooktop
- Electric Oven
- Built-In Microwave
- Built-In Electric Oven
Interior Features
- Cool System: Central Air, Zoned
- Heat System: Gas Pack, Electric, Heat Pump, Natural Gas, Zoned
- Floors: 0
- Rooms: Living Room, Office, Dining Area, Sunroom, Other, Master Bedroom, Bedroom 2, Bedroom 3, Bedroom 4
- Interior: Walk-in Closet(s), High Ceilings, Kitchen Island, Ceiling Fan(s), Pantry, Walk-in Shower, Walk-In Closet(s)
Exterior Features
- Parking: Concrete
- Siding: Fiber Cement
- Roof: Architectural Shingle
- Exterior: Irrigation System
Additional Features
- County: Pender
- Property Type: Single Family Residence
- Tax Number: 4214-50-6190-0000
- Water/Sewer: Public Water
- Year Built: 2026
Recently Viewed
