Location
Agent Comments
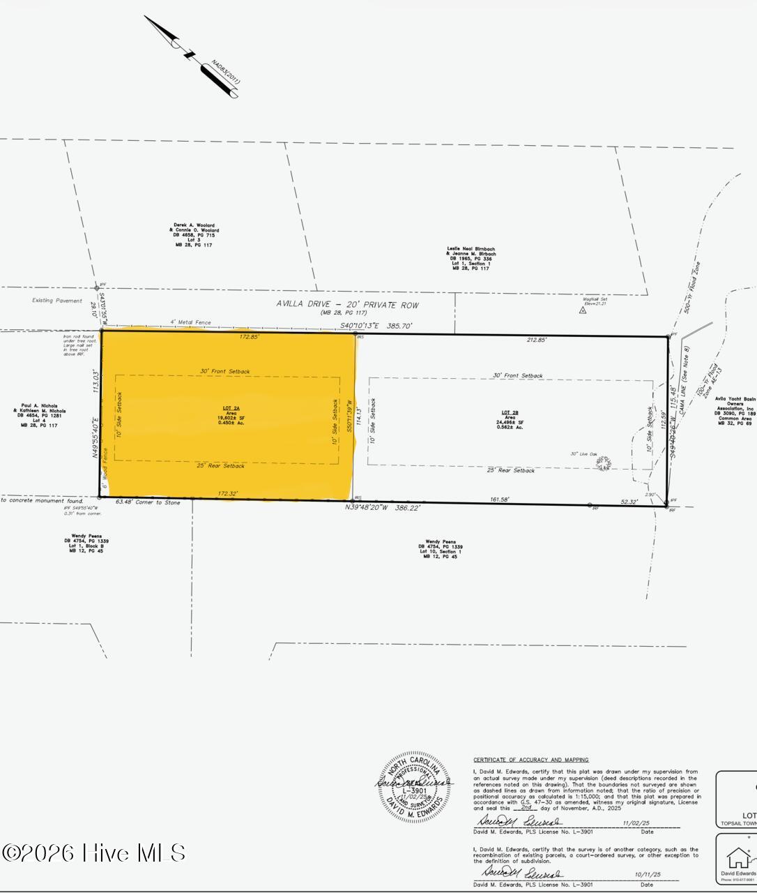
LOT A (0.45 Acre)
INTRACOASTAL WATERWAY HOMESITE | DEEDED ACCESS | PRIVATE BOAT LIFT | ELEVATED COASTAL LOT
Experience refined coastal living with this .45-acre waterfront homesite offering deeded water access and a private boat lift on the Intracoastal Waterway, with beautiful views toward South Topsail Island.
This elevated lot provides an ideal foundation for a custom luxury home, designed to capture water views, natural light, and coastal breezes. Enjoy effortless days on the water with quick access to boating, fishing, and waterfront recreation.
Located near Olde Point Country Club and just minutes from Topsail Island, this property offers a rare combination of convenience, lifestyle, and long-term value.
Property Features:
Intracoastal Waterway access
Private boat lift with deeded access
Elevated homesite
Water views of South Topsail Island
.45-acre buildable lot
Quiet, established coastal community
Expanded Opportunity:
Buyers have the rare option to purchase the adjoining waterfront lot, creating a larger estate property with enhanced privacy, expanded water frontage, and increased build potential--ideal for a luxury residence or multigenerational coastal retreat.
A rare chance to secure a premium coastal homesite with flexibility to expand.
Additional Features
- County: Pender
- Property Type: Residential Land
- Tax Number: 2147483647
- Water/Sewer: Natural Gas Available, Water Available, Electricity Available
Recently Viewed
