Location
Agent Comments
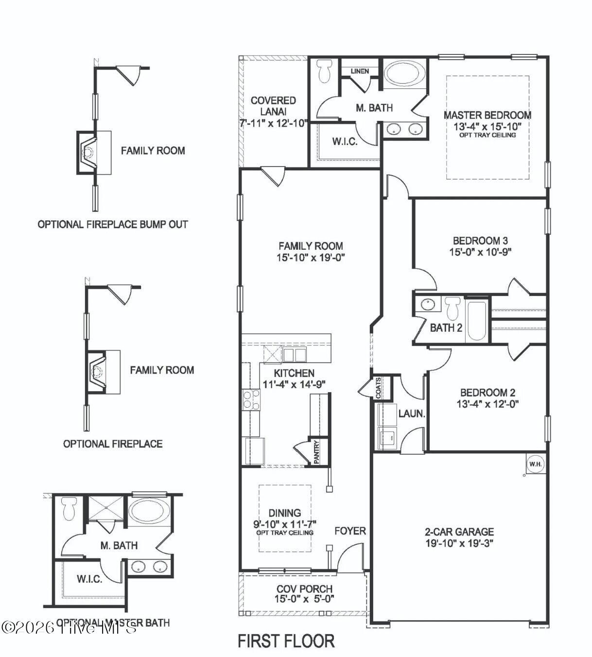
The 1727 floorplan by Adams Homes is a remarkable home design that seamlessly blends style, comfort, and functionality. With three bedrooms and two bathrooms, this single-story home offers a spacious and inviting living space for families or individuals looking for the perfect balance of elegance and practicality. As you step into the home, you'll be welcomed by a gracious foyer that leads you into the heart of the house. The open-concept design flawlessly connects the kitchen, dining area, and living room, creating a warm and welcoming atmosphere that is perfect for entertaining guests or spending quality time with loved ones. The kitchen is a true highlight, boasting modern appliances, ample cabinet space, and a large counter that serves as a focal point for both meal preparation and casual dining. The living room serves as the central gathering space, featuring generous proportions and an abundance of natural light, making it the ideal spot for relaxation and socializing. The master suite is privately positioned at the back of the home, offering a peaceful retreat for homeowners. It showcases a spacious bedroom, a walk-in closet, and an ensuite bathroom with double vanities, and a luxurious walk-in shower. The two additional bedrooms are thoughtfully located near the front of the home, providing privacy and versatility for accommodating family members, and guests, or creating a home office or hobby space. Convenience is a priority in the 1727 floorplan, as evidenced by the designated laundry room, which is conveniently situated near the bedrooms for ease of use. The two-car garage provides ample space for parking and storage, ensuring that your vehicles and belongings are secure and organized. With Adams Homes' unwavering commitment to quality craftsmanship, the 1727 floorplan boasts exceptional attention to detail and fine finishes throughout.
Amenities
- Electric Oven
- Built-In Microwave
- Dishwasher
Interior Features
- Cool System: Central Air
- Heat System: Fireplace(s), Electric, Heat Pump
- Floors: 0
- Rooms: Master Bedroom, Bedroom 2, Bedroom 3, Dining Area, Dining Room, Living Room, Laundry
- Interior: Master Downstairs, Walk-in Closet(s), Tray Ceiling(s), High Ceilings, Mud Room, Kitchen Island, Ceiling Fan(s), Pantry, Walk-in Shower, Walk-In Closet(s)
Exterior Features
- Parking: Garage6
- Siding: Vinyl Siding
- Roof: Architectural Shingle
Additional Features
- County: Onslow
- Property Type: Single Family Residence
- Tax Number: 2147483647
- Year Built: 2026
Recently Viewed
