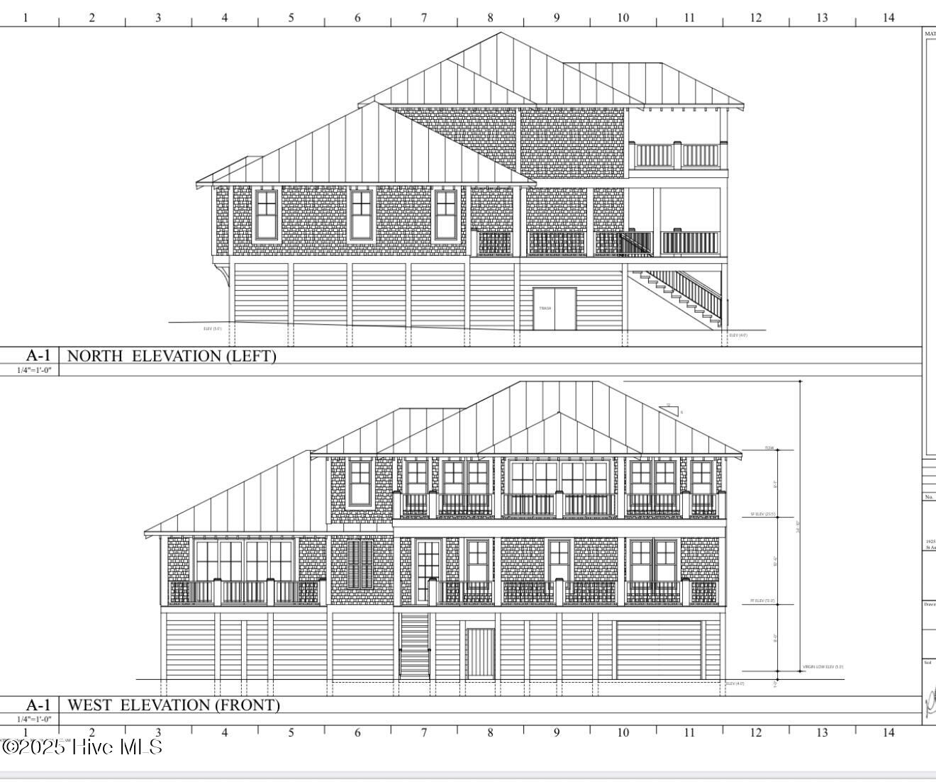
227 W Bald Head Wynd presents a rare pre-construction opportunity to secure a custom-built home in a fantastic island location. Perfectly positioned for breathtaking Atlantic Ocean views and spectacular sunsets, this home design checks all the boxes.Showcasing classic island architecture, the exterior features hardie plank siding paired with a standing seam metal roof--an enduring coastal aesthetic accented by layered outdoor living.Spanning more than 3,600 heated sq ft, the 5-bedroom, 4.5-bath design follows a reverse floor plan to maximize natural light and sweeping water views. The upper level will serve as the heart of the home, where an open-concept living and dining area flows seamlessly onto an expansive porch. Thoughtful details such as a walk-in pantry, wet bar, and generous storage elevate the space.On the main level, three private bedroom suites each include their own bath, complemented by a Jack and Jill bath shared by bedrooms 4 & 5 .Don't need 5 bedrooms? No problem - the 5th bedroom can be finished out as a kid's den or an office - buyer's choice. An elevator that serves all floors makes arrivals and departures a breeze!Buyers have the opportunity to collaborate with the builder on interior design, selections and finishes. This is an exceptional opportunity to secure a brand-new oceanview retreat at pre-construction pricing and be ready for Summer 2026!Equity BHI Club Lifestyle Membership.
- Gas Cooktop
- Built-In Microwave
- Washer
- Refrigerator
- Ice Maker
- Dryer
- Dishwasher
Ceiling Fan(s),Reverse Floor Plan,Wet Bar,Walk-In Closet(s),Walk-in Shower,Solid Surface,Elevator,Master Downstairs,Kitchen Island,Gas Log
Combination
Built-In Microwave,Refrigerator,Washer,Ice Maker,Gas Cooktop,Dryer,Dishwasher
Outdoor Shower
- County: Brunswick
- Property Type: Single Family Residence
- Tax Number: 2641f003
- Waterfront Features: Second Row
- Water/Sewer: City/Town
- Stories: 2
- Year Built: 2025
- Parking: Garage Faces Front
- Siding: Composition, Fiber Cement, Shake Siding
- Roof: Metal
- Exterior: Outdoor Shower
