Location
Agent Comments
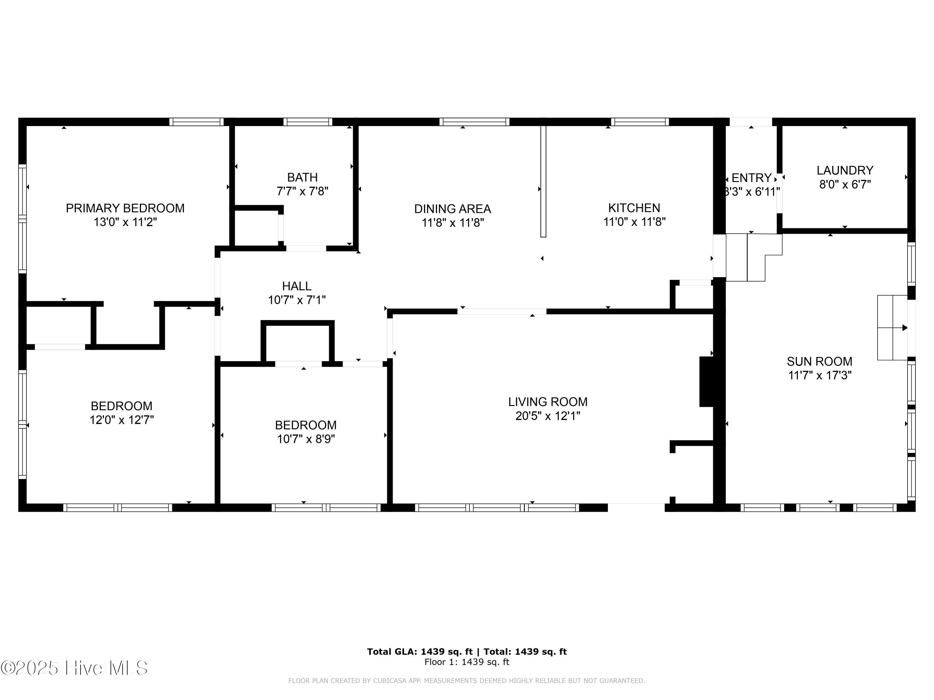
Located on .84 acres, this 3-bedroom, 1-bath home offers 1,439 sq ft of comfortable living space designed to fit your lifestyle. Fresh flooring, neutral paint, and natural light create a bright and inviting feel throughout.
The spacious living room sits at the heart of the home, offering plenty of room for gathering and everyday living. Just off the living area, the kitchen and dining space flow seamlessly, making mealtimes and entertaining effortless.
A standout feature is the sunroom — lined with large windows that frame peaceful backyard views, it's the perfect spot for a cozy sitting room, playroom, or home office. A separate laundry room adds convenience and functionality.
Outside, the large yard offers space for pets, play, or gardening, while the low-maintenance brick exterior makes upkeep easy.
Located just minutes from schools, shopping, and dining, this home blends comfort, practicality, and a central location — ready for you to move in and make it your own.
Amenities
- Electric Cooktop
- Built-In Microwave
Interior Features
- Cool System: Central Air
- Heat System: Electric, Heat Pump
- Floors: 1
- Rooms: Dining Room
- Interior: Ceiling Fan(s)
Exterior Features
- Parking: Gravel
- Siding: Brick, Vinyl Siding
- Roof: Architectural Shingle
Additional Features
- County: Robeson
- Property Type: Single Family Residence
- Tax Number: 2147483647
- Stories: 1
- Year Built: 1969
Recently Viewed
